首页
品牌
产品
案例
新闻
联系
NEWS CENTER
新闻
媒体动态
公司新闻
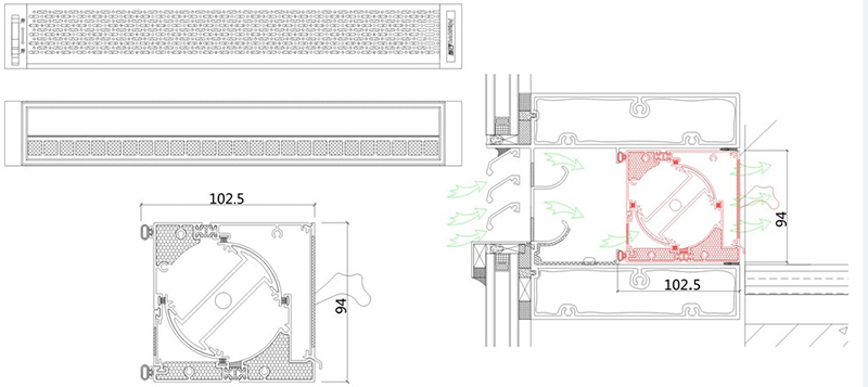
森绿航窗式隔音通风器原理解释
一、通风器分解图: 二、空气流通示意图及功能原理说明: 1、隔尘原理: 1)后板2内装有氟碳过滤网,当室外新鲜空气进入时,氟碳过滤网可以过滤0.23微米以上的颗粒尘埃。 2)经过...
More
窗式自然通风器的特点
1)节能;无动力消耗。 2)降噪;合理的结构设计和吸音材料,最大限度的降低室内噪音。 3)换气量大,并且可自由调节风量。 4)无需维护,拆洗方便。...
More
窗式通风器雨天不开窗也能通风 防止墙壁发霉
一夜之间墙就发霉了 随着春季的到来,春雨连绵的天气也随之来袭。刘先生住的是老房子,家里湿气很重,玻璃上经常有水滴,但他没想到一夜之间墙就发霉了,而且他还发现家里开了...
More
介绍 | 窗式自然通风器首选广州森绿航
当今社会,高楼林立,车水马龙,现代化程度越来越高。 可与人类最亲近的空气,却在悄悄发生变化。 无止尽的汽车尾气、工厂排出的废气 沙尘暴等自然灾害 一切的一切让您苦恼,似...
More
会呼吸的窗体:森绿航幕墙通风器
近几年兴建的高档写字楼,外立面(即外墙)几乎都采用整体玻璃幕墙的建筑手法,绝大多数的办公室被设计成为封闭式窗户的空间,这主要是为了减少开窗对能量的损耗,以期达到冬季...
More
建筑通风小能手—建筑门窗用通风器
建筑门窗用通风器(简称幕墙 窗式通风器 )并不是新鲜事物,在国外早已经产生并得到广泛应用,但是直到2000年左右才被引进国内,当时并没有得到广泛的关注。随着经济的发展,人...
More
首页
上一页
1
2
3
下一页
末页